





















AO28
House in Woollahra
Set within the established heritage suburb of Sydney’s Woollahra, we transformed a modest terrace house into a light-filled family home. Our approach respects its heritage while embracing contemporary living.
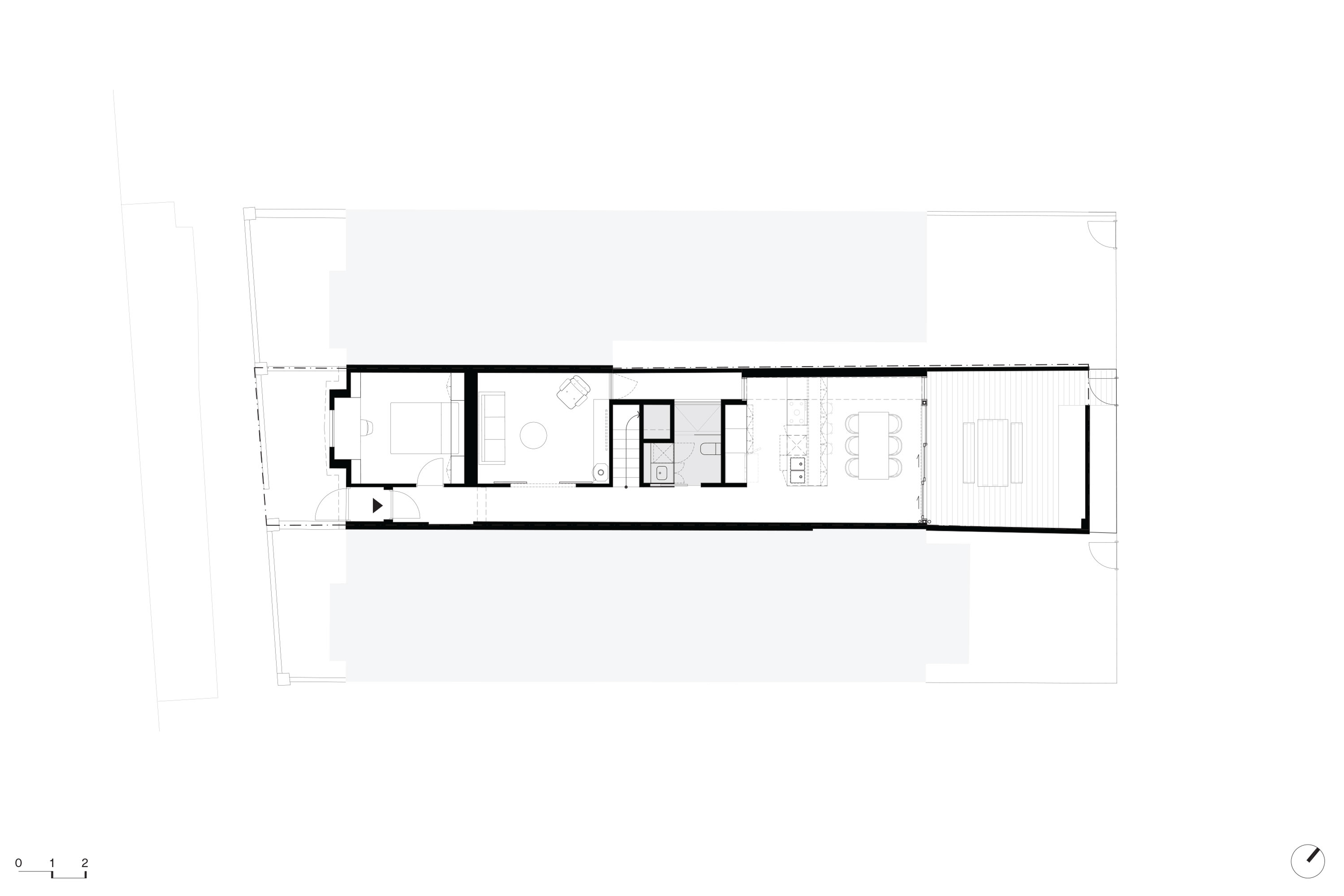
Working within the constraints of a tight 110m2 footprint, we reimagined the space to accommodate modern needs. The renovation took a single bathroom and bedroom, turning it into a two-bedroom, two-bathroom residence with expanded living areas.
The design centres on the inter play between old and new. Visitors arrive through the original terrace before descending in to the rear extension. A key feature is the skylight, replicating the dimensions of the lost breezeway. This passes through the downstairs as a full skylight.
The lightwell serves multiple functions–it creates a visual separation between old and new sections, floods the lower level with natural light and blurs the boundary between inside and out. It also doubles as a unique shower space for the main bathroom.
The extension cleverly expands the perceived living space. A large window connects the interior to an outdoor area, effectively doubling the living room's sense of spaciousness without increasing its physical footprint.
Upstairs, we've maintained the original pitched roof form to harmonise with neighbouring properties. However, the space has been reimagined with multiple skylights and a screened terrace off the main bedroom. It’s a private outdoor retreat.
Personal touches add personality. For instance, custom-painted tiles by the client in the children's bathroom.
Woollahra House is a delicate balance of preservation and innovation, resulting in a home that feels both grounded in its context and refreshingly contemporary.
Back to top
↑YEAR
2017 – 2021
Location
Woollahra, NSW
TRADITIONAL OWNERS
Cadigal
SIZE
110m²
STATUS
Built
Photographer
Kat Lu
Builder
Maple Building & Design
Structure
E2 Design
